Brouwerssingel 51 9201 VB Drachten

€ 439.000,- k.k.

Omschrijving

Geschakelde twee-onder-een-kapwoning uit 2003 met bijkeuken en aangebouwde, verlengde stenen garage! De woning is op fraaie woonstand gelegen nabij het centrum van Drachten heeft een vernieuwde badkamer en keuken en beschikt aan de voorzijde over een royaal dakterras!

Indeling:
Begane grond: Zij-entree met overkapping; hal met toilet, meterkast en trapopgang; L-woonkamer (ca. 40 m²) voorzien van PVC vloer met vloerverwarming, houtkachel (ter overname) en schuifpui naar achtertuin; open en moderne keuken (2018) voorzien van diverse inbouwapparatuur; bijkeuken met deur naar de tuin en doorgang naar de verlengde garage (7,02 x 2,85 meter).

Verdieping:
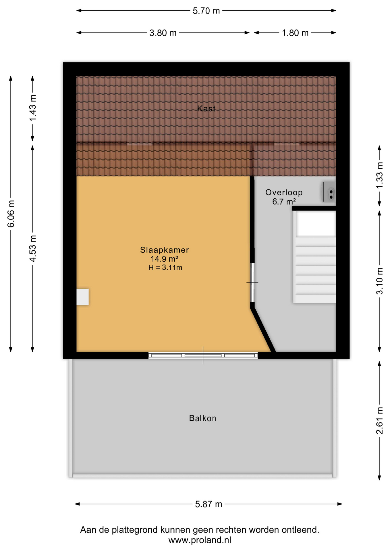
Overloop met toegang tot 3 ruime slaapkamers van respectievelijk 12,2; 11 en 11,2 m²; inloopkast; recent vernieuwde badkamer (2023) voorzien van ruime inloopdouche, toilet, ligbad en prachtige dubbele wastafel met wastafelmeubel.

Zolder:
De ruime zolderverdieping is bereikbaar via een vaste trap. Op de zolderverdieping, met toegang tot het royale dakterras, is een ruime vierde slaapkamer gecreëerd, welke uiteraard ook perfect kan fungeren als werk/hobbyruimte!

Tuin:
De gezellige, zonnige en besloten achtertuin is op het zuiden gelegen. De zonwering boven de schuifpui houdt de woonkamer zomers koel. Een vrijstaand houten schuurtje zorgt voor voldoende opbergruimte voor gereedschap, buitenspeelgoed en tuinkussens. Voor de woning is er op de eigen oprit voldoende parkeergelegenheid voor het parkeren van 2 auto's.

Algemeen:
- Bouwjaar 2003;
- Voorzien van 12 zonnepanelen;
- uitstekend onderhouden woning;
- volledig geïsoleerd, laag energieverbruik;
- Energielabel A;
- Nieuwe badkamer 2023;
- Houtkachel 2024;
- Vloerverwarming benedenverdieping;
- gunstig gelegen nabij centrum en basisscholen.

Omgeving
De woning aan Brouwerssingel 51 bevindt zich in een prettige, goed onderhouden woonomgeving binnen Drachten. De straat zelf straalt een rustige woonsfeer uit met ruimte voor groen en waterpartijen. Daarnaast is het centrum van Drachten met al zijn voorzieningen op steenworp afstand gelegen!

Deze prachtige woning in het echt bekijken? Bel ons voor het maken van een afspraak en neem gerust je eigen aankoopmakelaar mee!

____

Uit een overeenkomst vloeien pas verplichtingen voort als koper én verkoper de overeenkomst hebben ondertekend. Een mondelinge overeenkomst tussen een particuliere koper en particuliere verkoper is niet rechtsgeldig. Met andere woorden er is geen koop zolang het koopcontract niet door beide partijen is ondertekend.

De Meetinstructie is gebaseerd op de NEN2580. De Meetinstructie is bedoeld om een meer eenduidige manier van meten toe te passen voor het geven van een indicatie van de gebruiksoppervlakte. De Meetinstructie sluit verschillen in meetuitkomsten niet volledig uit, door bijvoorbeeld interpretatieverschillen, afrondingen of beperkingen bij het uitvoeren van de meting.

Hoewel deze woningpresentatie met de grootst mogelijke zorg is samengesteld blijft de mogelijkheid bestaan dat er fouten en/of onvolledigheden in de omschrijving aanwezig zijn. Noch de verkoper, noch ons kantoor aanvaarden in dit geval enige aansprakelijkheid.

Overdracht

Status
Verkocht onder voorbehoud
Vraagprijs
€ 439.000,- k.k.

Bouwvorm

Soort woning
Eengezinswoning
Type woning
Geschakelde twee onder één kapwoning
Bouwjaar
2003
Liggingen
Aan rustige weg, In woonwijk

Indeling

Woonoppervlakte
138 m2
Perceeloppervlakte
219 m2
Inhoud
542 m3
Aantal kamers
5
Aantal slaapkamers
4
Aantal badkamers
1

Energie

Verwarming
CV ketel
C.V.-Ketel
Nefit
Bouwjaar C.V.-Ketel
2015
Warmwater
CV ketel
Isolatie
Volledig geïsoleerd
Combiketel
Ja
Brandstof
Gas
Eigendom
Eigendom

Buitenruimte

Tuin
Achtertuin, Voortuin
Hoofdtuin
Achtertuin
Ligging hoofdtuin
Zuid
Achterom
Nee
Kwaliteit tuin
Normaal

Bergruimte

Schuur / Berging
Vrijstaand hout

Parkeergelegenheid

Parkeer faciliteiten
Openbaar parkeren
Garage
Aangebouwd steen
Capaciteit
1
Garages
1

Dak

Soort dak
Lessenaardak
Materiaal dak
Pannen

Overig

Permanente bewoning
Ja
Onderhoud binnen
Goed
Onderhoud buiten
Goed
Huidig gebruik
Woonruimte
Huidige bestemming
Woonruimte

Plattegronden

Video

Panorama

Panorama afbeelding 1

Panorama afbeelding 2

Panorama afbeelding 3

Panorama afbeelding 4

Panorama afbeelding 5

Locatie

Deze woning bezichtigen?

We geven je een eerlijk advies

Neem contact op