De Zwaden 22 9203 GK Drachten

€ 399.000,- k.k.

Omschrijving

Zoek je een unieke gezinswoning? Bekijk dan zeker deze vrijstaande woning nabij het centrum van Drachten. Gelegen aan De Zwaden, op een rustige weg nabij het centrum. Deze sfeervolle woning is voorzien van talloze gemakken op een royaal perceel van maar liefst 400 m².

Het huis is voorzien van dak- en muurisolatie en kunststof kozijnen met HR++ glas in de gehele woning! De platte daken zijn in 2025 vernieuwd.

Indeling
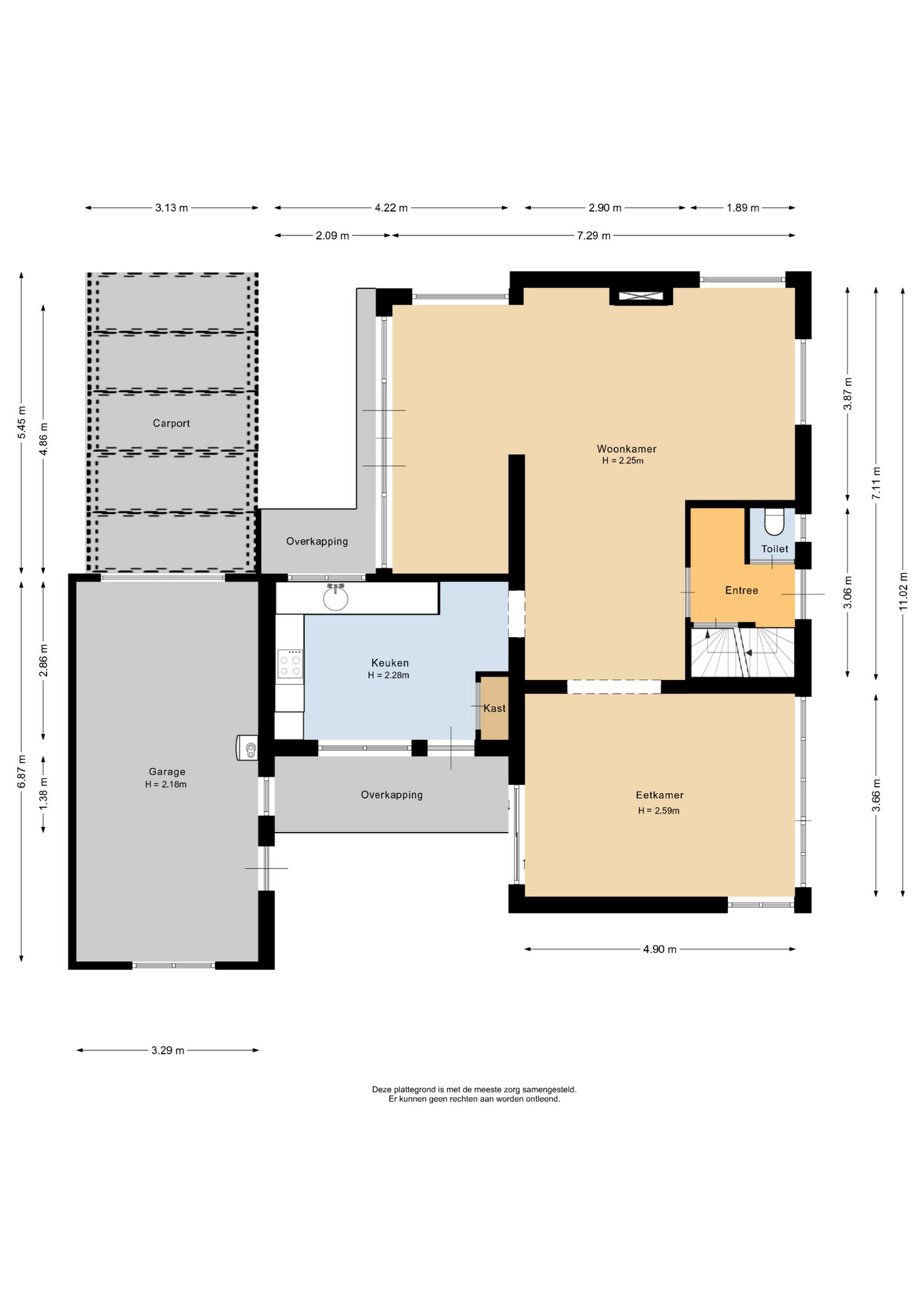
Begane grond: hal, toilet en kelder. Woonkamer deels voorzien van plavuizen met vloerverwarming en elektrische haard. Eetkamer met schuifpui naar de tuin; keuken voorzien van vernieuwde (2020) inbouwapparatuur: o.a. koelkast, vaatwasser, inductieplaat oven en magnetron; deuren naar tuin.

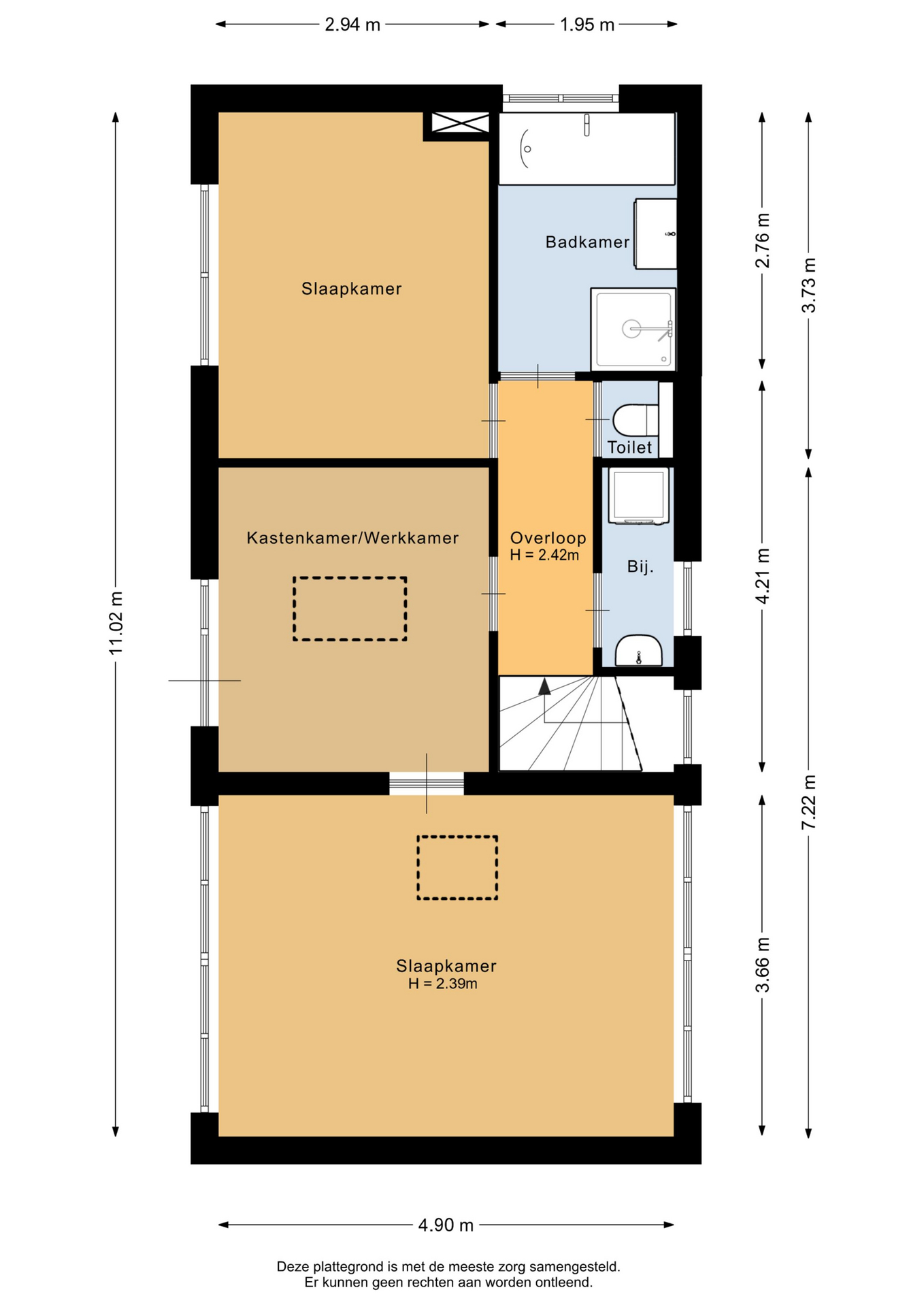
1e verdieping: overloop met toegang tot 2 slaapkamers, waarvan één met doorloop naar werk/kastenkamer en voorzien van deur naar dak van de garage/ luik naar vliering. Badkamer voorzien van bad en hoekdouche en vloerverwarming; (apart) toilet, ruimte voor was- en droger met wastafel.

Buitenruimte & tuin
Met zowel een voor- als achtertuin, inclusief zij tuin, is er altijd wel een plekje in de zon te vinden. De hoofdtuin is gericht op het westen en biedt veel privacy. Aan de voorzijde van de woning is een carport gerealiseerd in 2016 en een aangebouwde stenen garage met dubbele (kunststof) deuren te vinden.

Bijzonderheden & extra informatie
- Garage aanwezig met water en elektriciteit, plat dak vernieuwd in 2025;
- Een royaal woonoppervlakte van 134 m²;
- 20 stuks zonnepanelen
- Uitbouw 2002, carport 2016;
- aangebouwde stenen garage;
- kunststof kozijnen met HR++ in de gehele woning;
- Ouderdoms- en asbestclausule worden opgenomen in de koopovereenkomst.
_______________________________________
Uit een overeenkomst vloeien pas verplichtingen voort als koper én verkoper de overeenkomst hebben ondertekend. Een mondelinge overeenkomst tussen een particuliere koper en particuliere verkoper is niet rechtsgeldig. Met andere woorden er is geen koop zolang het koopcontract niet door beide partijen is ondertekend.

De Meetinstructie is gebaseerd op de NEN2580. De Meetinstructie is bedoeld om een meer eenduidige manier van meten toe te passen voor het geven van een indicatie van de gebruiksoppervlakte. De Meetinstructie sluit verschillen in meetuitkomsten niet volledig uit, door bijvoorbeeld interpretatieverschillen, afrondingen of beperkingen bij het uitvoeren van de meting.

Hoewel deze woningpresentatie met de grootst mogelijke zorg is samengesteld blijft de mogelijkheid bestaan dat er fouten en/of onvolledigheden in de omschrijving aanwezig zijn. Noch de verkoper, noch ons kantoor aanvaarden in dit geval enige aansprakelijkheid.

Overdracht

Status
Beschikbaar
Vraagprijs
€ 399.000,- k.k.

Bouwvorm

Soort woning
Eengezinswoning
Type woning
Vrijstaande woning
Bouwjaar
1960
Liggingen
Aan rustige weg, In centrum

Indeling

Woonoppervlakte
134 m2
Perceeloppervlakte
400 m2
Inhoud
587 m3
Aantal kamers
5
Aantal slaapkamers
2
Aantal badkamers
1

Energie

Verwarming
CV ketel, Mogeljkheid voor open haard, Vloerverwarming gedeeltelijk
C.V.-Ketel
Intergas
Bouwjaar C.V.-Ketel
2015
Warmwater
CV ketel
Isolatie
Dakisolatie, Muurisolatie
Combiketel
Ja
Brandstof
Gas
Eigendom
Eigendom

Buitenruimte

Tuin
Tuin rondom
Hoofdtuin
Tuin rondom
Achterom
Ja
Kwaliteit tuin
Normaal

Parkeergelegenheid

Parkeer faciliteiten
Openbaar parkeren, Op eigen terrein
Garage
Aangebouwd steen
Capaciteit
1
Garages
1

Dak

Soort dak
Zadeldak
Materiaal dak
Pannen

Overig

Permanente bewoning
Ja
Onderhoud binnen
Goed
Onderhoud buiten
Goed
Huidig gebruik
Woonruimte
Huidige bestemming
Woonruimte

Alle informatie in een overzichtelijk document (pdf bestand).

Download brochure

Plattegronden

Video

Panorama

Panorama afbeelding 1

Panorama afbeelding 2

Panorama afbeelding 3

Panorama afbeelding 4

Panorama afbeelding 5

Locatie

Deze woning bezichtigen?

We geven je een eerlijk advies

Neem contact op