Tarweland 8 9205 EK Drachten

€ 397.500,- k.k.

Omschrijving

Aan de rand van de woonwijk Himsterhout gelegen, comfortabel 3-kamer appartement. Het appartement, met balkon, is gelegen op de tweede verdieping. Alle bewoners hebben de beschikking over een eigen tuintje aan de waterkant. Parkeren is mogelijk op eigen terrein, waarbij dit appartement de beschikking heeft over twee eigen parkeerplaatsen.

De gezamenlijke entree op de begane grond is beveiligd met een videofoon installatie. Op de begane grond bevindt zich ook de (fietsen)berging, welke is voorzien van een stroomaansluiting. Het appartement is zowel met de trap als ook per lift bereikbaar.

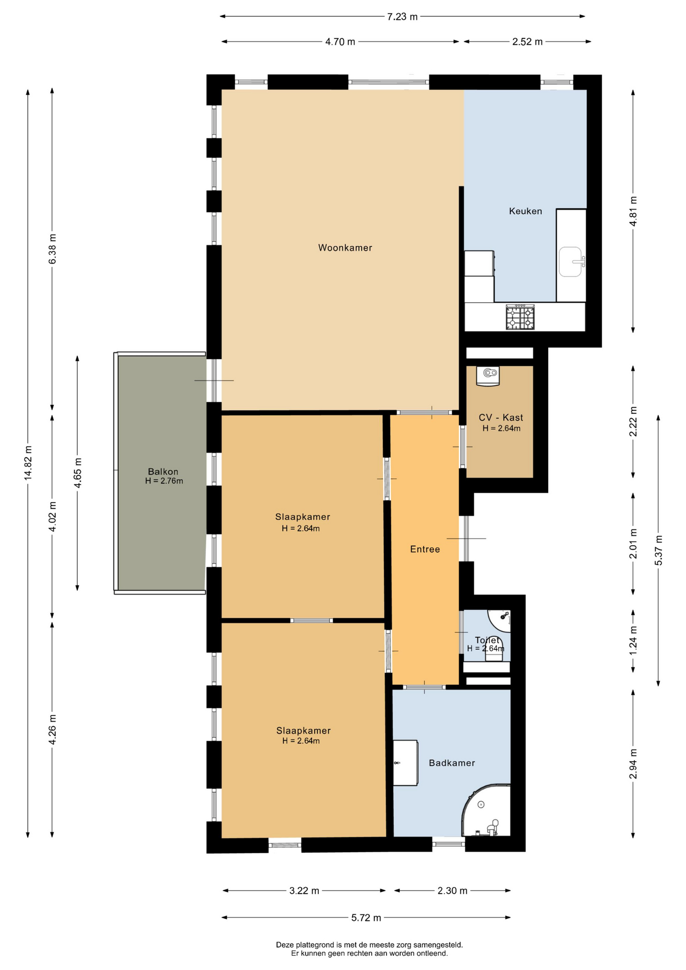
Indeling
Entree/hal met toilet en berging/stookruimte; ruime en lichte woonkamer van circa 30 m² met toegang tot circa 9 m² ruim balkon. Vanuit de woonkamer is er mooi zicht richting de waterpartij en de straat. Er is altijd wat te zien! De halfopen keuken in hoekopstelling is voorzien van diverse apparatuur; vanuit de hal zijn twee slaapkamer van respectievelijk 13,6 en 13 m² bereikbaar, alsmede de badkamer, welke is voorzien van een douche en wastafelmeubel.

Algemeen
- Fraaie ligging aan de rand van het Himsterhout;
- Gelegen in verzorgd complex met fraai aangelegde buitenruimte;
- Bijdrage VvE € 215,31 per maand (prijspeil 2026);
- Woonoppervlakte 89 m²;
- Energielabel B;
- Bouwjaar 2005.

Vanaf de woning zijn prachtige wandel- en fietsroutes direct bereikbaar. Zo bent u op de fiets binnen 10 minuten in de bossen van Beetsterzwaag of bij het water van de Smalle Ee. Winkelcentrum en divers basis onderwijs treft u aan in de naastgelegen wijk De Drait. De woning is goed bereikbaar en op korte afstand gelegen van de uitvalswegen naar Heerenveen, Groningen en Leeuwarden.

Interesse in dit appartement? Neem desgewenst uw eigen NVM aankoopmakelaar mee!

Omgeving
Vanaf het appartement zijn prachtige wandel- en fietsroutes direct bereikbaar. Zo bent u op de fiets binnen 10 minuten in de bossen van Beetsterzwaag of bij het water van de Smalle Ee. Diverse voorzieningen zijn op korte afstand gelegen waaronder het goed geoutilleerde winkelcentrum De Drait, alsmede kinderboerderij De Naturij en jachthaven De Drait. Daarnaast kent Drachten diverse onderwijsinstellingen, een breed aanbod aan gezondheidsinstellingen waaronder ziekenhuis Nij Smellinghe.

Dit mooie appartement bekijken? Neem gerust je eigen NVM aankoopmakelaar mee tijdens een bezichtiging.
____

Uit een overeenkomst vloeien pas verplichtingen voort als koper én verkoper de overeenkomst hebben ondertekend. Een mondelinge overeenkomst tussen een particuliere koper en particuliere verkoper is niet rechtsgeldig. Met andere woorden er is geen koop zolang het koopcontract niet door beide partijen is ondertekend.

De Meetinstructie is gebaseerd op de NEN2580. De Meetinstructie is bedoeld om een meer eenduidige manier van meten toe te passen voor het geven van een indicatie van de gebruiksoppervlakte. De Meetinstructie sluit verschillen in meetuitkomsten niet volledig uit, door bijvoorbeeld interpretatieverschillen, afrondingen of beperkingen bij het uitvoeren van de meting.

Hoewel deze woningpresentatie met de grootst mogelijke zorg is samengesteld blijft de mogelijkheid bestaan dat er fouten en/of onvolledigheden in de omschrijving aanwezig zijn. Noch de verkoper, noch ons kantoor aanvaarden in dit geval enige aansprakelijkheid.

Overdracht

Status
Verkocht onder voorbehoud
Vraagprijs
€ 397.500,- k.k.

Bouwvorm

Soort appartement
Portiekflat
Bouwjaar
2005
Liggingen
Aan rustige weg, In woonwijk, Vrij uitzicht

Indeling

Woonoppervlakte
89 m2
Inhoud
296 m3
Aantal kamers
3
Aantal slaapkamers
2
Aantal badkamers
1
Aantal woonlagen
1

Energie

Verwarming
CV ketel
Warmwater
CV ketel
Combiketel
Ja
Brandstof
Gas
Eigendom
Eigendom

Buitenruimte

Tuin
Zonneterras
Achterom
Nee

Parkeergelegenheid

Parkeer faciliteiten
Op eigen terrein
Garage
Parkeerplaats

Dak

Soort dak
Plat dak
Materiaal dak
Bitumineuze Dakbedekking

Overig

Permanente bewoning
Ja
Onderhoud binnen
Goed
Onderhoud buiten
Goed
Huidig gebruik
Woonruimte
Huidige bestemming
Woonruimte

Plattegronden

Video

Panorama

Panorama afbeelding 1

Panorama afbeelding 2

Panorama afbeelding 3

Panorama afbeelding 4

Panorama afbeelding 5

Panorama afbeelding 6

Panorama afbeelding 7

Locatie

Deze woning bezichtigen?

We geven je een eerlijk advies

Neem contact op