Want 31 8502 BT Joure

Verkocht

Omschrijving

Gelegen direct bij binnenkomst in Joure, prachtig en ruim (110 m²) appartement direct aan de waterkant!
Bij het appartement behoort een vrijstaande garage (7x2.8m)

De perfecte keus voor senioren die op zoek zijn naar rust en comfort, maar toch de voorzieningen dichtbij willen houden.

Het appartementencomplex dat in 1996 gebouwd is, is gelegen op steenworp afstand van voorzieningen. Met een totaal woonoppervlakte van zo'n 110 vierkante meter, biedt het appartement genoeg ruimte en comfort. De ruime woonkamer van circa 50 m² heeft een prachtig vrij uitzicht over het water. Vanuit de kamer is het ruime balkon op het zuidoosten bereikbaar.

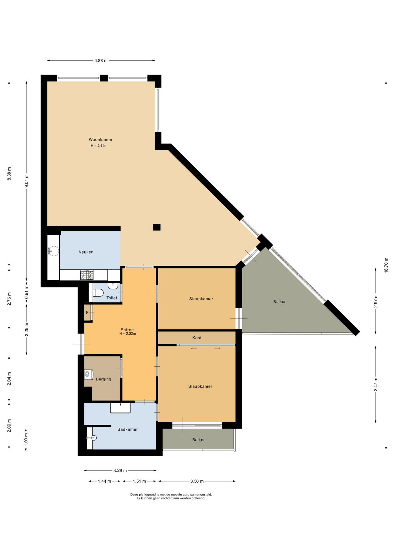
Indeling:
entree, ruime woonkamer van circa 50 m² met open keuken voorzien van diverse inbouwapparatuur. Vanuit de hal zijn het toilet, de bijkeuken met wasmachineaansluiting en cv-ketel, 2 slaapkamers, waarvan de grote slaapkamer is voorzien van een inbouwkast, en de badkamer met wastafelmeubel en inloopdouche bereikbaar.
Het appartement beschikt over twee balkons.

Parkeren & berging
Parkeren is hier geen probleem. Het appartement heeft een eigen garagebox voor één auto. Deze box is voorzien van elektriciteit en heeft een elektrische deur. Aan de achterzijde van de garagebox is een loopdeur, zodat ook de fietsen makkelijk in de garage gestald kunnen worden.

Bijzonderheden:
- Ruim appartement, 110 m²
- Eigen garagebox
- Bouwjaar 1996
- Prachtig uitzicht over waterpartij
- Bijdrage VvE €200,-

Deze prachtige woning bekijken? Neem gerust je eigen NVM aankoopmakelaar mee tijdens een bezichtiging.
____

Uit een overeenkomst vloeien pas verplichtingen voort als koper én verkoper de overeenkomst hebben ondertekend. Een mondelinge overeenkomst tussen een particuliere koper en particuliere verkoper is niet rechtsgeldig. Met andere woorden er is geen koop zolang het koopcontract niet door beide partijen is ondertekend.

De Meetinstructie is gebaseerd op de NEN2580. De Meetinstructie is bedoeld om een meer eenduidige manier van meten toe te passen voor het geven van een indicatie van de gebruiksoppervlakte. De Meetinstructie sluit verschillen in meetuitkomsten niet volledig uit, door bijvoorbeeld interpretatieverschillen, afrondingen of beperkingen bij het uitvoeren van de meting.

Hoewel deze woningpresentatie met de grootst mogelijke zorg is samengesteld blijft de mogelijkheid bestaan dat er fouten en/of onvolledigheden in de omschrijving aanwezig zijn. Noch de verkoper, noch ons kantoor aanvaarden in dit geval enige aansprakelijkheid.

Overdracht

Status
Verkocht
Vraagprijs
€ 425.000,- k.k.

Bouwvorm

Soort appartement
Portiekflat
Bouwjaar
1996
Liggingen
Aan water, In woonwijk, Vrij uitzicht

Indeling

Woonoppervlakte
110 m2
Inhoud
336 m3
Aantal kamers
3
Aantal slaapkamers
2
Aantal badkamers
1
Aantal woonlagen
1

Energie

Verwarming
CV ketel
Bouwjaar C.V.-Ketel
2014
Warmwater
CV ketel
Isolatie
Volledig geïsoleerd
Combiketel
Ja
Brandstof
Gas
Eigendom
Eigendom

Buitenruimte

Tuin
Geen tuin
Achterom
Nee

Parkeergelegenheid

Parkeer faciliteiten
Openbaar parkeren, Op eigen terrein
Garage
Garagebox
Capaciteit
1
Garages
1

Dak

Soort dak
Plat dak

Overig

Permanente bewoning
Ja
Onderhoud binnen
Goed
Onderhoud buiten
Goed
Huidig gebruik
Woonruimte
Huidige bestemming
Woonruimte

Plattegronden

Video

Panorama

Panorama afbeelding 1

Panorama afbeelding 2

Panorama afbeelding 3

Panorama afbeelding 4

Panorama afbeelding 5

Locatie

Deze woning bezichtigen?

We geven je een eerlijk advies

Neem contact op