De Emma 2a 9207 CC Drachten

Onder bod

Omschrijving

Ben je op zoek naar een vrijstaande woning in een rustige wijk in Drachten? Dan is deze woning op De Emma 2A wellicht de woning die je zoekt! De woning heeft drie ruime slaapkamers, veel woonoppervlakte (157 m²) en is gelegen in de groene en kindvriendelijke wijk De Folgeren.

En wat dacht je van die fantastische tuin die zo prachtig is aangelegd? Zie jij jezelf hier al wonen?

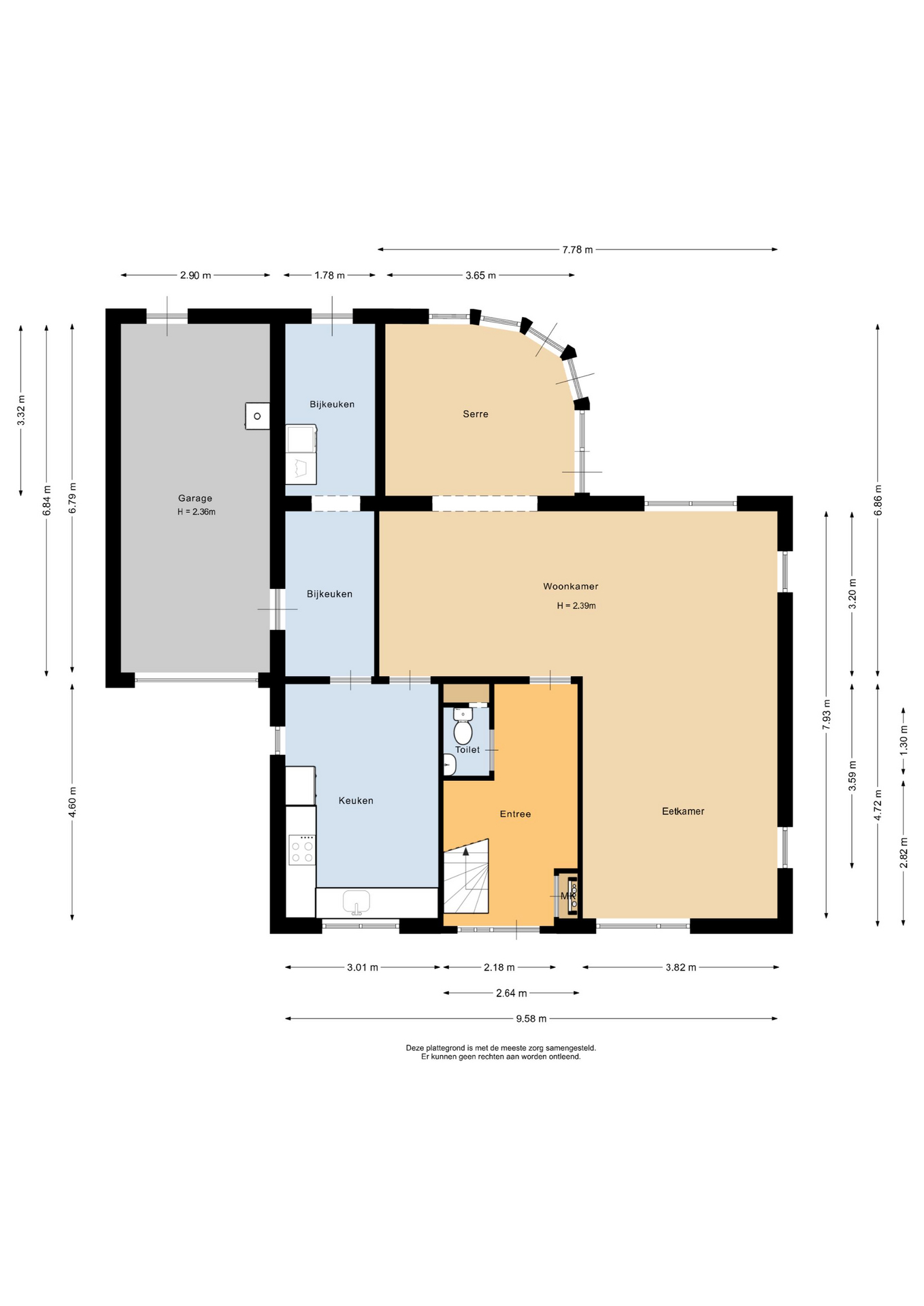
De indeling van de woning is als volgt:

Begane grond: entree met separaat toilet, meterkast en trapopgang. L-vormige woonkamer van circa 42 m² met toegang tot de in 2001 aangebouwde serre met prachtig uitzicht over de tuin; dichte keuken (uit 2000) van ca. 14 m² met zicht op de voortuin en rustige straat; hal met doorgang naar aangebouwde stenen garage en bijkeuken waar plek is voor je witgoed en met loopdeur richting tuin.

Eerste verdieping: ruime overloop met toegang tot 3 slaapkamers allen met toegang naar een balkon; De ouderslaapkamer is voorzien van een ruime inloopkast. De badkamer is voorzien van toilet, ligbad douche en wastafel.
Vliering: vaste trap richting vliering waar de CV ketel en extra opbergruimte te vinden is.

Tuin
De prachtig aangelegde en goed onderhouden tuin is rondom het huis gelegen. De hoofdtuin is op het zonnige zuidoosten gesitueerd. In de tuin zijn een overkapping, tuinhuisje en houten schuurtje te vinden.
Aan de voorzijde is een grote oprit met voldoende ruimte voor het parkeren van meerdere auto's op eigen erf.

Algemeen:
- Bouwjaar 1984;
- Platte daken 2018 vervangen;
- Energielabel C;
- In groene en kindvriendelijke woonwijk;
- Op steenworp afstand van wijkwinkelcentrum 'Noorderpoort';
- Tuin rondom woning.
- Woonoppervlakte 157 m².

Interesse in deze fijne, vrijstaande woning met prachtige ligging? Kom langs voor een bezichtiging en neem gerust je eigen NVM aankoopmakelaar mee!
____

Uit een overeenkomst vloeien pas verplichtingen voort als koper én verkoper de overeenkomst hebben ondertekend. Een mondelinge overeenkomst tussen een particuliere koper en particuliere verkoper is niet rechtsgeldig. Met andere woorden er is geen koop zolang het koopcontract niet door beide partijen is ondertekend.

De Meetinstructie is gebaseerd op de NEN2580. De Meetinstructie is bedoeld om een meer eenduidige manier van meten toe te passen voor het geven van een indicatie van de gebruiksoppervlakte. De Meetinstructie sluit verschillen in meetuitkomsten niet volledig uit, door bijvoorbeeld interpretatieverschillen, afrondingen of beperkingen bij het uitvoeren van de meting.

Hoewel deze woningpresentatie met de grootst mogelijke zorg is samengesteld blijft de mogelijkheid bestaan dat er fouten en/of onvolledigheden in de omschrijving aanwezig zijn. Noch de verkoper, noch ons kantoor aanvaarden in dit geval enige aansprakelijkheid.

Overdracht

Status
Onder bod
Vraagprijs
€ 450.000,- k.k.

Bouwvorm

Soort woning
Eengezinswoning
Type woning
Vrijstaande woning
Bouwjaar
1984
Liggingen
Aan rustige weg, In woonwijk

Indeling

Woonoppervlakte
157 m2
Perceeloppervlakte
508 m2
Inhoud
649 m3
Aantal kamers
4
Aantal slaapkamers
3
Aantal badkamers
1

Energie

Verwarming
CV ketel, Hete lucht verwarming
Bouwjaar C.V.-Ketel
2007
Warmwater
CV ketel
Isolatie
Dakisolatie, Vloerisolatie, Dubbelglas
Combiketel
Ja
Brandstof
Gas
Eigendom
Eigendom

Buitenruimte

Tuin
Tuin rondom
Hoofdtuin
Tuin rondom
Achterom
Ja
Kwaliteit tuin
Normaal

Bergruimte

Schuur / Berging
Vrijstaand hout
Isolatie
Geen isolatie

Parkeergelegenheid

Parkeer faciliteiten
Op eigen terrein
Garage
Aangebouwd steen
Capaciteit
1
Garages
1

Dak

Soort dak
Dwarskap
Materiaal dak
Pannen

Overig

Permanente bewoning
Ja
Onderhoud binnen
Goed
Onderhoud buiten
Goed
Huidig gebruik
Woonruimte
Huidige bestemming
Woonruimte

Plattegronden

Video

Panorama

Panorama afbeelding 1

Panorama afbeelding 2

Panorama afbeelding 3

Panorama afbeelding 4

Panorama afbeelding 5

Locatie

Deze woning bezichtigen?

We geven je een eerlijk advies

Neem contact op