Kleinzand 35 9202 XA Drachten

Verkocht

Omschrijving

Deze verzorgde tussenwoning met aangebouwde bijkeuken en een stenen berging beschikt o.a. over een moderne/vernieuwde badkamer en toilet, kunststof kozijnen met HR++ glas, een vaste trap naar zolder, 10 stuks zonnepanelen.

Deze woning is gelegen op een perceel van ca. 144 m² in een keurige woonomgeving in woonwijk De Wiken te Drachten. Voorzieningen als bijvoorbeeld winkels, scholen en sportaccommodaties liggen op steenworp afstand.

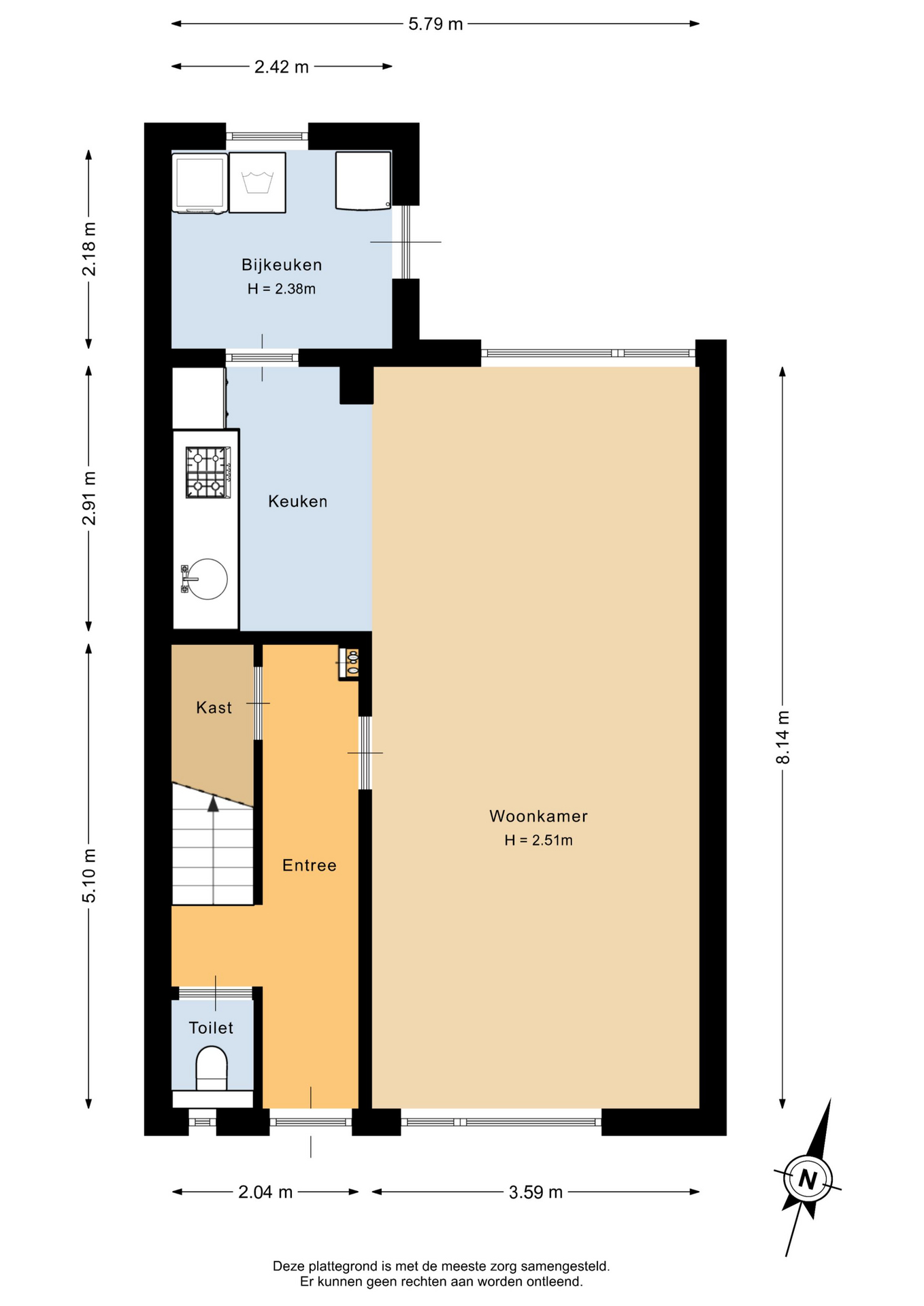
Indeling:
Voorentree, hal met laminaatvloer, modern toilet, trapkast, doorzon woonkamer met laminaatvloer, keuken voorzien van inbouwapparatuur (combimagnetron, vaatwasser, vier pits gaskookplaat, afzuigkap, spoelbak), de aangebouwde bijkeuken (2005) is geïsoleerd, met een plavuizenvloer, aansluiting wasmachine en een deur naar de achtertuin.

Eerste etage: overloop, drie slaapkamers waarvan twee met vaste kastruimte, moderne/vernieuwde badkamer (2021) met inloopdouche, toilet en vaste wastafel.

Tweede etage: Er is in 2021 een vaste trap naar zolder gerealiseerd, waardoor er een prachtige vierde slaapkamer is ontstaan. Door de drie ramen naast elkaar is er veel daglicht.

Verzorgde voor- en achtertuin, de achtertuin biedt veel privacy (geen achterburen!) en is ingericht met een terras, ruime stenen berging en bereikbaar via een achterom.

Algemeen
- Energielabel A;
- Kunststof kozijnen en voordeur;
- Volledige woning voorzien van HR++ glas;
- Vloerisolatie in 2025 met EPS korrels;
- Vaste trap naar zolder;
- 10 zonnepanelen;
- Woonoppervlakte 116 m²;
- Nabij voorzieningen.

Maak snel een afspraak om deze woning eens van binnen te bekijken!

------------
Uit een overeenkomst vloeien pas verplichtingen voort als koper én verkoper de overeenkomst hebben ondertekend. Een mondelinge overeenkomst tussen een particuliere koper en particuliere verkoper is niet rechtsgeldig. Met andere woorden er is geen koop zolang het koopcontract niet door beide partijen is ondertekend.

De Meetinstructie is gebaseerd op de NEN2580. De Meetinstructie is bedoeld om een meer eenduidige manier van meten toe te passen voor het geven van een indicatie van de gebruiksoppervlakte. De Meetinstructie sluit verschillen in meetuitkomsten niet volledig uit, door bijvoorbeeld interpretatieverschillen, afrondingen of beperkingen bij het uitvoeren van de meting.

Hoewel deze woningpresentatie met de grootst mogelijke zorg is samengesteld blijft de mogelijkheid bestaan dat er fouten en/of onvolledigheden in de omschrijving aanwezig zijn. Noch de verkoper, noch ons kantoor aanvaarden in dit geval enige aansprakelijkheid.

Overdracht

Status
Verkocht
Vraagprijs
€ 259.000,- k.k.

Bouwvorm

Soort woning
Eengezinswoning
Type woning
Tussenwoning
Bouwjaar
1965
Liggingen
Aan rustige weg, In woonwijk

Indeling

Woonoppervlakte
116 m2
Perceeloppervlakte
428 m2
Inhoud
409 m3
Aantal kamers
5
Aantal slaapkamers
4
Aantal badkamers
1

Energie

Verwarming
CV ketel
C.V.-Ketel
Intergas Kompakt HRE
Bouwjaar C.V.-Ketel
2012
Warmwater
CV ketel
Isolatie
Dakisolatie, Muurisolatie, Vloerisolatie
Combiketel
Ja
Brandstof
Gas
Eigendom
Eigendom

Buitenruimte

Tuin
Achtertuin, Voortuin
Hoofdtuin
Achtertuin
Ligging hoofdtuin
Noord
Achterom
Ja
Kwaliteit tuin
Normaal

Bergruimte

Schuur / Berging
Vrijstaand steen

Parkeergelegenheid

Parkeer faciliteiten
Openbaar parkeren
Garage
Geen garage

Dak

Soort dak
Zadeldak
Materiaal dak
Pannen

Overig

Permanente bewoning
Ja
Onderhoud binnen
Goed
Onderhoud buiten
Goed
Huidig gebruik
Woonruimte
Huidige bestemming
Woonruimte

Plattegronden

Video

Panorama

Panorama afbeelding 1

Panorama afbeelding 2

Panorama afbeelding 3

Panorama afbeelding 4

Panorama afbeelding 5

Locatie

Deze woning bezichtigen?

We geven je een eerlijk advies

Neem contact op